Price Reduced £840,000 - Exclusive


  • Unique Property Development
  • Off Street Parking
  • Large Rear Garden
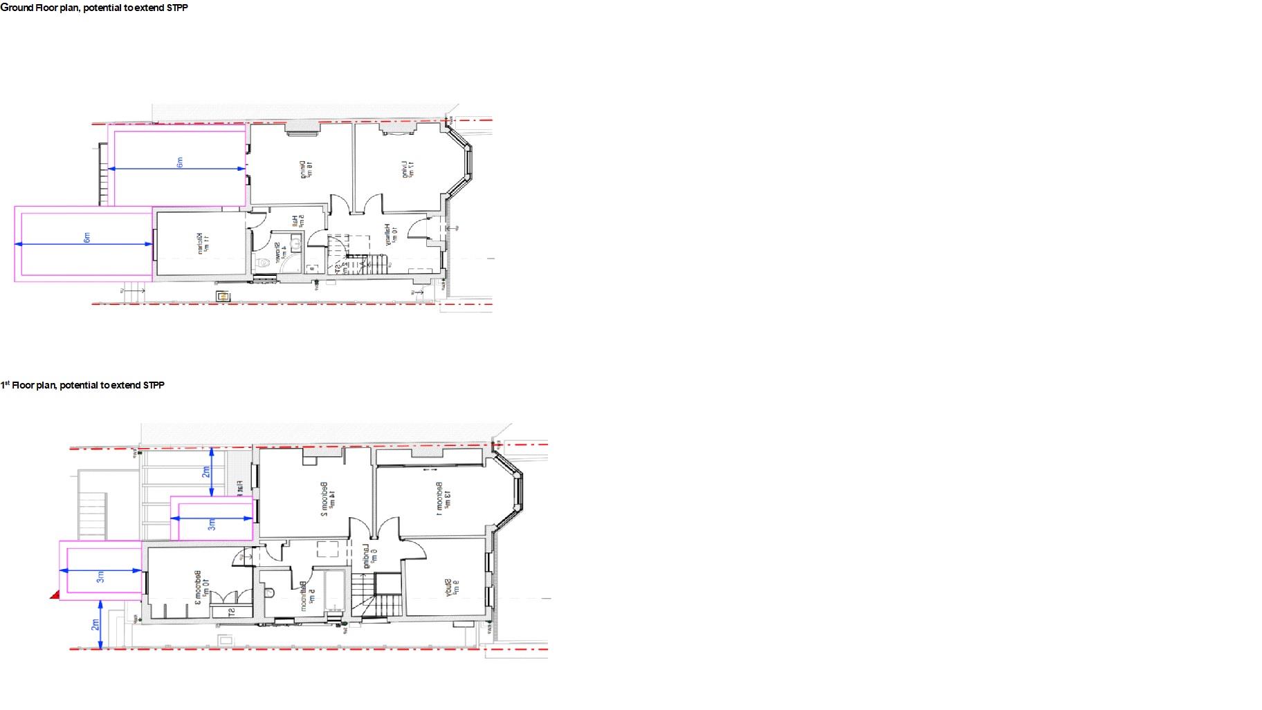
  • Potential To Extend STPP
  • Chain Free
  • Freehold

This is a fantastic investment opportunity on one of Hendon's most sought-after roads. With generous living space, a substantial garden, parking, and huge scope to add value through extension and redevelopment, this property is perfect for those looking to create additional units or modernise an already versatile layout.


Early viewing is highly recommended.

Key Features



Two Existing Flats

Ground Floor: Spacious two-bedroom garden flat with direct access to a large private rear garden.



First Floor: Bright two-bedroom first floor flat with excellent natural light.



Significant Development Potential

Scope to extend further and reconfigure into 3 or 4 separate flats (STPP).

Ideal for investors, developers, or buyers seeking to add value.



Outdoor Space & Parking

Large rear garden offering multiple possibilities.



Off-street parking on front driveway.



Prime Hendon Location

Situated on a highly regarded road in NW4.

Moments from Hendon Underground Station (Northern Line) and Hendon Overground/Thameslink.



Excellent access to local shops, amenities, schools, and the upcoming Brent Cross regeneration area.



Transport & Connectivity

Easy access to the A41, A406, M1 and major bus routes.

Quick links to Central London, Brent Cross, and Hendon Central.



Council Tax
Barnet Council, Band F

Notice
Please note we have not tested any apparatus, fixtures, fittings, or services. Interested parties must undertake their own investigation into the working order of these items. All measurements are approximate and photographs provided for guidance only.

Floor Plan
EER Chart

The Energy-Efficiency Rating is a measure of a home's overall efficiency. The higher the rating, the more energy-efficient the home is, and the lower the fuel bills are likely to be.

Utility Supply Type
Electric Mains Supply
Gas Mains Supply
Water Mains Supply
Sewerage Mains Supply
Broadband Unknown
Telephone Unknown

Other Items Description
Heating Gas Central Heating
Garden/Outside Space Yes
Parking Yes
Garage No

Broadband Coverage Highest Available Download Speed Highest Available Upload Speed
Standard 16 Mbps 1 Mbps
Superfast 80 Mbps 20 Mbps
Ultrafast 1800 Mbps 220 Mbps

Mobile Coverage Indoor Voice Indoor Data Outdoor Voice Outdoor Data
EE Enhanced Enhanced Enhanced Enhanced
Three Enhanced Enhanced Enhanced Enhanced
O2 Enhanced Enhanced Enhanced Enhanced
Vodafone Enhanced Enhanced Enhanced Enhanced

Broadband and Mobile coverage information supplied by Ofcom.


marker icon